优质内容 来源:豆奶APP下载地址泵业 作者:豆奶APP下载地址小编 发布时间:2023-07-28 15:13:45 阅读次数: 收藏:23 分享:11
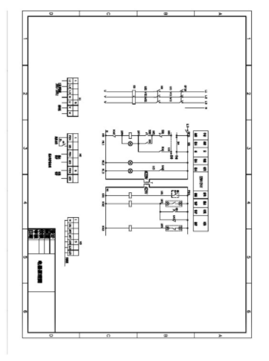
选用水银接点浮球,需用两只。若选用磁性浮球,则只需一只,接法是:将浮球开关接入Y1 Y2端子即可。
若选用水银接点浮球,需要三只。
若选用磁性浮球,则只需两只,接法是:先将Y1、Y3短接,在将起泵、停泵共用浮球接入Y1、Y2端子,将备用泵浮球接入Y1、Y4端子。如果该型控制器控制其它类型水泵,即没有漏水、温度信号线的水泵,则只须将漏水、温度信号线端子悬空,不接任何线路即可,否则该控制器不能正常工作。

传感器通常选用设置上、下线的电接点压力表(如YX系列),也可选用上限、下限独立的两只电接点压力表或压力继电器。当压力降压下限压力时,P0、P1接通,水泵起动,压力升至下限压力时,P0、P2接通,水泵停止工作。
传感器通常选用压力表式设置上、下限的电接点温度表,也可选用其他温度调节仪。当温度达到上限设定值,T0、T2接通,水泵开始工作。当温度降压下限设定值,T0、T1接通,水泵停止工作。
如果需要易地操作,将K1、K2接常闭(停止)按钮,K3、K4接常开(启动)按钮。若不需易地操作,先将K1、K2短路,K3、K4开路,这样水泵则由控制柜面板按钮操作。如果需要先开水泵,后开机组,则将联机常开触点K5、K6串入空调机组的控制回路。
消防喷淋泵有消防控制器输往消防中心的遥控按钮信号线及各分泵泵开、泵停信号接点。
以上就是自吸豆奶APP官网下载网址进入安卓版厂家为大家提供的内容,希望能够对大家有所帮助!
本文标签:
本文参考资料来源: 中国泵阀网 泵阀商务网 自吸豆奶APP官网下载网址进入安卓版厂家 中国知网